ABSTRACT
From the past, productivity improvement has been a problem to be solved, and various methods have been continuously developed. Recently, the demand for electric vehicles has increased along with the domestic and international environmental policies. Researches on the electrode production facilities have been actively conducted to increase the productivity of secondary batteries. Dispensers required for bonding the separator of the secondary battery, the cathode material and the anode material are also increasing in demand. The dispensers that spray a certain amount of adhesive quickly contribute to productivity improvement. However, Piezo type, which is currently being developed and used widely, has a higher performance than some industry, and its more expensive. In this study, we design a dispenser with lower performance than the conventional piezo type and lower the unit price and analyze the results.
-
KEYWORDS: Dispenser, Dot, Jetting, Solenoid actuator
-
KEYWORDS: 디스펜서, 액적, 제트 분사, 솔레노이드 작동기
NOMENCLATURE
1. 연구 배경
전기자동차 생산량이 급속도로 증가함에 따라 2차 전지의 수요량이 증가하고 있다.
Fig. 1(a)와 같은 2차 전지는 분리막, 양극재, 음극재, 전해질인 Cell로 구성되고 이와 같은 소재를 접착해서 사용한다.
7
Fig. 1 Secondary cell for automotive vehicle and jetting dispenser using piezo actuator
Jetting Dispenser는 소량의 접착제 토출 제어를 위하여 필수적인 기술이며, 연속적으로 토출되는 Dispenser에 비하여 표면과 일정한 간격으로 비접촉 토출이 가능하므로 표면의 오염 및 Dispenser 노즐에 접착제 잔류가 최소로 줄어드는 장점으로 최근 많이 사용하는 Dispenser 방식이다.
2
Fig. 1(b)는 Piezo Actuator를 이용한 Jetting Dispenser의 모습이다.
6 현재는 주로 Piezo Type의 Jetting Dispenser를 사용하여 Cell을 접착하고 있다. Piezo Type은 압전소자를 이용한 방식으로 전류를 이용하여 압축과 팽창을 구현하지만 변위의 한계성 때문에 적층 형태의 구조로 만들어 사용해야 한다.
1
따라서 본 연구에서는 변위량에 따른 토출량 조절의 한계성을 줄이고자 새로운 방식의 Jetting Dispenser를 개발하려고 한다. 새로 개발하고자 하는 기술은 솔레노이드(Solenoid)를 이용한 방식이다. Solenoid Jetting Dispenser는 변위량의 조절이 필요가 없다. 솔레노이드 코어의 변위량을 따로 조절하지 않아도 솔레노이드 밸브의 On/Off 시간을 설정하여 토출량을 조절할 수 있다. 또한 솔레노이드 밸브는 낮은 전력 소모, 짧은 스위칭 시간, 높은 접점 완성률과 긴 내구 수명을 가지기 때문에 Dispenser에 사용하기에 적합하다. 추가로 피스톤의 끝에 강화고무(EPDM)을 부착하여 실린더와 피스톤 사이의 충격량을 줄여 마모 내구성을 높여 내구수명을 더 길게 가질 수 있다. Piezo Type의 경우 Actuator의 단가가 높지만 이에 비해 솔레노이드 밸브는 비교적 구조가 간단하여 기존 제품들보다 단가가 낮을 것으로 기대된다.
3 본 논문의 목적은 구조가 간단하고, 저가형으로 접착제의 Jetting Diameter가 균일한 솔레노이드 방식의 Jetting Dispenser의 개발이다.
2. Solenoid Jetting Dispenser
2.1 Jetting Dispenser 설계 및 제작
Fig. 2는 본 연구에서 사용하는 Dispenser의 대략적인 구동 원리를 설명하기 위한 Working Diagram이다. 솔레노이드 밸브가 On 되었을 때 관을 통하여 스프링의 탄성력보다 큰 Air Compressor의 공기압이 피스톤을 위로 들어 올리고 토출구 및 접착제(Solution)가 토출된다. 반대로 솔레노이드 밸브가 Off 되었을 때는 관을 닫아 공기압을 차단하고 스프링의 탄성력에 의해 피스톤이 내려오면서 토출구 및 접착제 투입구가 닫히고 접착제가 토출되지 않는다.
5 그리고 토출구의 직경은 Φ0.1 mm로 매우 작아서 방전가공(EDM)을 이용해서 작업해야 할 필요가 있다.
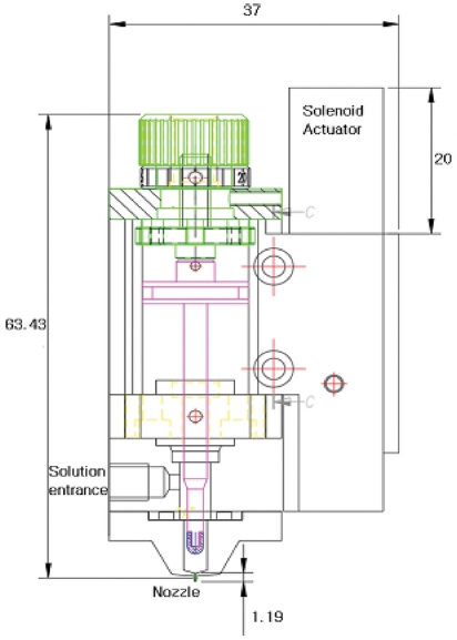
4 Fig. 3은 이번 실험에서 사용하는 Solenoid Jetting Dispenser의 설계 도면으로 전제 외형을 나타낸다.
Figs. 4(a)과
4(b)는 각각 제품의 부품들과 조립을 완성한 사진이다.
Fig. 2The solenoid actuator jetting dispenser working diagram used in this study
Fig. 3The solenoid air valve actuator jetting dispenser design in this study
Fig. 4The pilot solenoid jetting dispenser manufactured in this study
2.2 Jetting 실험
Fig. 5는 실험 장치이다. PLC 장치를 이용하여 솔레노이드 밸브의 On/Off 시간을 조절해 Solenoid Jetting Dispenser의 작동 주파수를 설정한다. Solenoid Jetting Dispenser에 의한 액적(Dot)의 크기 조절을 위한 높이 조절(Y축)장치를 설치한다. 실제로는 Dispenser가 움직이며 액적을 토출해야 하지만 실험여건 상 액적의 나열된 형태를 확인하기 위해 Dispenser는 고정하고 서보 모터(Servo Motor)와 볼 스크류를 이용해서 좌우로 움직이는 좌우 이송 판(X축)을 설치하여 이송판에 액적들을 받아낸다. 실험 시 높이를 2 mm로 고정해 두어 직경 3 mm정도의 액적 크기를 유지하고 서보모터를 이용해서 이송판이 X축으로 움직일 때, Dispenser가 작동하여 접착제(Bonding Liquid)를 토출하고 난 후에 30개의 액적 크기와 모양이 일정한지 확인한다.
Fig. 6은 Lighting Scanner (MICRO-VU VERTEX 251HC)를 사용하여 토출된 액적들의 크기를 측정한 것이다.
Fig. 7은 Lighting Scanner 측정화면이다. 측정장치는 X, Y축의 정확도가 2.0 μm+(L/200) mm이며 해상도는 0.1 μm의 사양을 가진 장치이다. 이 Lighting Scanner는 직경을 측정하는데 MCC (최소 외접원)를 이용한다. 이렇게 측정한 30개의 실험값과 이론값의 오차율을 비교하여 실제 사용 목적에 적합한 값인지를 확인한다.
Fig. 5Experiment devices for testing jetting performance
Fig. 6Dot size measurement using lighting scanner
Fig. 7Average circle fitting to determine ‘D’ by MCC (Minimum Circumscribed Circle) for dot size
2.3 결과 및 분석
솔레노이드 밸브의 On/Off 시간을 변경해 액적간 거리와 액적의 크기를 보고 시간의 따른 변화를 확인한다. 서보 모터의 속도와 솔레노이드의 On/Off 시간 설정에 따라 액적간 간격이 변화하므로 속도와 시간에 따라 각각의 결과를 비교 분석한다.
Fig. 9는 Solenoid Jetting Dispenser의 작동주파수를 다르게 설정해서 나온 액적들의 크기 값들이다. 결과 값을 보면 최대 0.2 mm 정도의 오차가 나오는 것을 확인할 수 있다. 여러 번의 실험에서 30개의 샘플들의 값들의 평균을 이용해서 표준편차를 알 수 있다. 실험 작동 주파수 중 가장 큰 50 Hz에서의 표준편차는 0.05정도로 작은 값을 가진다. 결과와 같이 작은 오차는 액적의 크기가 일정하다고 볼 수 있는 수준이다. 작동주파수 측정의 이론값은
식(1)의 솔레노이드 밸브의 On/Off 시간을 이용하여 구하고 실험값은
식(2)의 액적간의 거리, 판의 속도와 볼스크류의 나사산 거리를 이용하여 구한다. 이 실험의 결과는 2차 전지 Cell의 접합용도로 사용되는 실제 현장에 적합한 값으로 판단된다.
Fig. 8Jetting dot diameter result at 30 Hz solenoid frequency of dispenser
Fig. 9Dot diameter result for 30 jetting drop samples for different solenoid frequencies (Hz) of dispenser
3. 결론
Jetting 실험결과 Solenoid Jetting Dispenser 장치로도 원하는 Jetting 효과를 얻을 수 있었다. Jetting의 형상이
Fig. 8과 같이 원형에 가까운 모습을 보이며 표준편차가 작고(0.05 미만) 작동주파수와 관계없이 일정한 액적 크기를 보여준다. 작동주파수는 본 연구 설계 Dispenser의 경우 50 Hz 내외까지 가능하나 액적의 원형을 잘 유지하기에는 40 Hz까지가 적당하다. 토출구의 노즐은 가능한 액적의 양을 최소로 조절하기 위해 직경을 Φ 0.1로 작게 가공해야 하므로 방전가공기(EDM) 또는 초정밀 가공기를 사용해야 한다. 초정밀 가공기를 사용하기 때문에 노즐의 깊이는 공구의 Stem 길이 한계로 1.5 mm 미만으로 제한된다.
본 연구에서는 Piezo Type처럼 높은 작동주파수의 Dispenser를 사용할 필요가 없는 용도로 솔레노이드 방식의 Jetting Dispenser를 설계 및 시험하였고 목적에 부합되는 결과를 얻었다. 솔레노이드 방식의 Jetting Dispenser는 높은 주파수를 가지지 않고 구조가 비교적 간단하기에 30% 정도의 제작 비용의 절감을 기대할 수 있다.
REFERENCES
- 1.
Dixon, D., Kazalski, J., Murch, F., and Marongelli, S., “Practical Issues Concerning Dispensing PUMP Technologies-Adhesive Bonds to a Surface in a Way That is Directly Proportional to Its Area,” Circuits Assembly, Vol. 8, No. 8, pp. 36-41, 1997.
- 2.
Nguyen, Q. H. and Choi, S.-B., “Modeling of Unsteady Laminar Flow based on Steady Solution in Jetting Dispensing Process,” IEEE Transactions on Electronics Packaging, 2008.
- 3.
Wedekin, S., “Micro Dispensing Comes of Age,” Surface Mount Technology Magazine, Vol. 15, No. 4, p. 62, 2001.
- 4.
Chen, X. and Kai, J., “Modeling of Positive-Displacement Fluid Dispensing Processes,” IEEE Transactions on Electronics Packaging Manufacturing, Vol. 27, No. 3, pp. 157-163, 2004.
10.1109/TEPM.2004.843083
- 5.
Yun, S. N., Ham, Y. B., Shin, K. C., Lee, G. T., and Tanaka, Y., “Dynamic Characteristics of a Solenoid Valve for Dispenser,” Journal of Drive and Control, Vol. 11, No. 9, pp. 42-44, 2014.
- 6.
Kim. S. S., “Design and Control of Jetting Dispenser driven by Piezoeletric Acutuator,” M.Sc. Thesis, Inha University, 2007.
- 7.
Kim, S. T., “Jetting Dispenser with Internal Type Cam Follower,” Ministry of SME, Research Report, 4-2018-034593-1, 2018.
- 8.
Biography
- Jong Hoon Lee
Researcher, Department of Mechanical Engineering, Chungbuk University. His research interest is Machine.
- Jae Sung Seo
Senior, Department of Mechanical Engineering, Chungbuk University. His research interest is Design.
- Ho Sung Kang
Master, Department of Mechanical Engineering, Chungbuk University. His research interest is Processing.
- Young Woo Lee
Researcher, Department of Mechanical Engineering, Chungbuk University. His research interest is Manufacturing and Processing.
- Chang Soon Park
Ph.D candidate Department of Mechanical Engineering, Chungbuk University. His research interest is Machine.
- Eung Suk Lee
Professor in the Department of Mechanical Engineering, Chungbuk University. His research interest is Machine.
Citations
Citations to this article as recorded by
